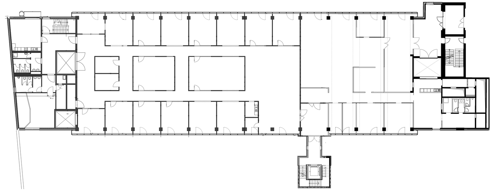
Im dritten Obergeschoss steht eine flexibel nutzbare Gewerbefläche zur Verfügung. Geeignet für produktionsnahe Prozesse, technische Arbeitsplätze oder entwicklungsorientierte Nutzung. Großzügige Fensterflächen, ein offenes Layout sowie Glastrennwände und ein Bodenbelag in Holzoptik sorgen für ein modernes, helles Arbeitsumfeld. Die Fläche ist vielseitig ausbaubar und kann bei Bedarf auch zur Laborfläche umgerüstet werden. Aufzüge, Stellplätze und ein Bistro im Campusbereich runden das Angebot ab.













