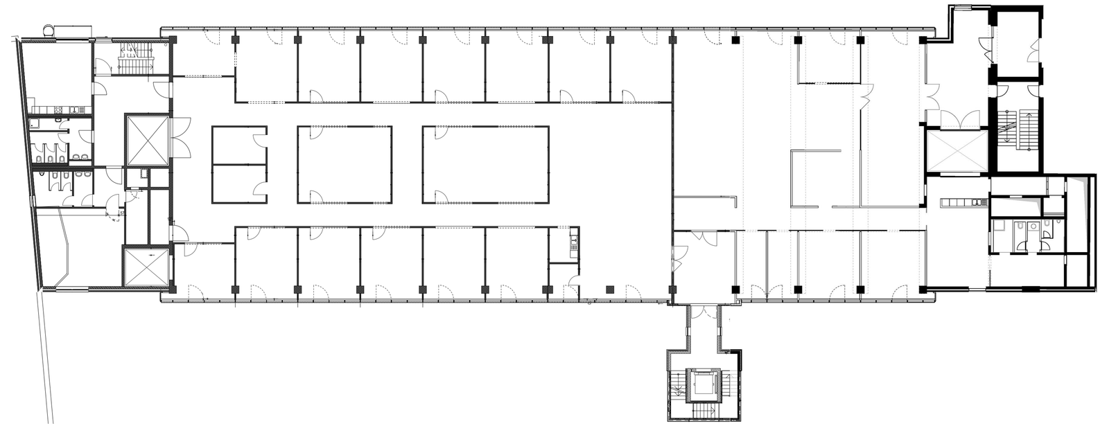
A flexible commercial space is available on the upper floor, ideal for production-related operations, technical workstations, or development-oriented use. Generous window areas, an open layout, glass partition walls, and wood-look flooring create a modern and bright working environment.
The area offers versatile fit-out options and can be converted into laboratory space if required. Elevators, parking spaces, and an on-site bistro within the campus complete the offering.













