In 2024, we partnered with Systasy Bioscience, a biotech innovator using DNA barcoding to map disease pathways and advance drug discovery.
Together, we designed the S2 Biolab to support cutting-edge pharmaceutical R&D—our most cost-efficient lab project to date, achieved through close collaboration and smart use of second-hand equipment.



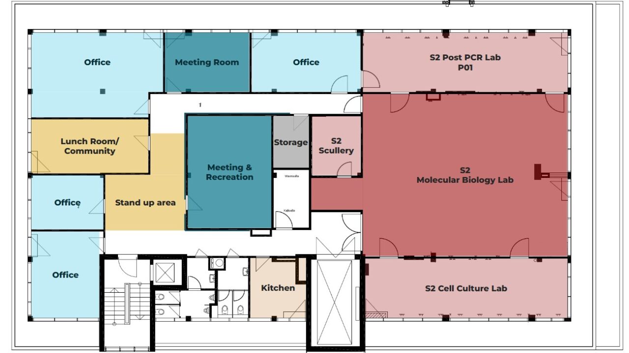
250m² S2 Lab
300m² Office
Munich, DE
Completed
SLA provides an end-to-end service for projects, starting with understanding the workflow of our clients to handing over an operational facility.
To kick off the project, we worked closely with Systasy to define their vision and lab requirements.
In our workshops, we outlined key needs, from safety compliance to workflow optimization and helped the team to find and sign a perfect new lab space.

To utilize this location optimally, some excess bench space is being sublet to smaller startups.
We’re happy that we could support here as well and connect Systasy and teams from our network to create a win-win situation.

This section contains temporary placeholder content.

This section contains temporary placeholder content.

We tailored the lab’s layout to optimize research workflows, integrating pre-owned equipment into the plan. Each decision balanced functionality, safety, and cost effectiveness.

We planned this lab using a “DIY Lab Planning” approach, providing expert guidance while Systasy’s team took an active role in execution. This model gave them full ownership while benefiting from our experience and network, resulting in a functional, budget-friendly S2 Biolab built through collaboration and smart decisions.

This section contains temporary placeholder content.

This section contains temporary placeholder content.

This section contains temporary placeholder content.

This section contains temporary placeholder content.

This section contains temporary placeholder content.

With a little bit of luck, we managed to not only arrange a deal to buy the lab furniture in a perfect condition, but also arrange the professional support to have it all be constructed at Systasy’s new HQ.



COO & CFO
Thanks to SLA, we were able to build our new lab in a highly streamlined and pragmatic way, completing it within just a few short months. We especially valued the well-structured process, user-friendly planning tools, and supplier connections – all of which were instrumental to the success of this project.
Last but not least, we truly enjoyed working with the SLA team; they made this complex endeavor feel surprisingly light and fun.