Within the historic Alte Post building in Berlin Neukölln, we designed the new Vly headquarters — featuring a prototyping lab and a public Future Food Café to showcase the latest innovations in food-tech.
Vly develops plant-based milk alternatives that are both delicious and nutritious. Our design creates a space where people can connect with the science behind food innovation and experience the future of sustainable nutrition.
1.300m²
Berlin, DE
Unbuilt
SLA provides an end-to-end service for projects, starting with understanding the workflow of our clients to handing over an operational facility.
The look and feel of the spaces were inspired by vly’s brand identity and the company culture. The building geometry overlaps with this aspect and is translated into the spatial volumes and furniture elements.

In the heart of Berlin Neukölln, next door to the City Hall, we found this dream site for vly thanks to our friends at real estate developer coros, who owned and revitalized this historic building.
Being located in one of the busiest areas of Berlin, the vly headquarters would become the perfect hot spot for the community to experience vly’s range of products and for food-tech companies to share their innovations.

This section contains temporary placeholder content.

This section contains temporary placeholder content.

This section contains temporary placeholder content.

This section contains temporary placeholder content.

This section contains temporary placeholder content.

This section contains temporary placeholder content.

This section contains temporary placeholder content.

This section contains temporary placeholder content.

This section contains temporary placeholder content.

This section contains temporary placeholder content.

This section contains temporary placeholder content.

This section contains temporary placeholder content.

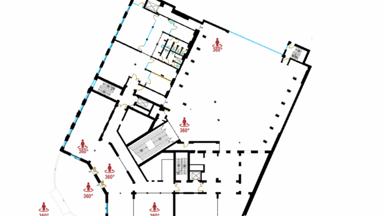
The complex floor plan had to be analyzed and zoned to have separate but interconnected functions, each with it’s own access while creating a journey for the external visitors.

Spatial planning takes into account the factors on site and retrofitting the building with services that are required to run a lab.
The lab, office and common areas are planned to visually be barrier-free. Architecture can change how teams work and interact and we aim to create a human centric work environment.

We made a 360° virtual tour to optimize our planning process and also to communicate with our client quickly and accurately.
You can experience the space if you were there, taking the two escalators from the main entrance into the counter hall of the post office, an architectural monument from the 1980’s.

At the time we made the tour, the Alte Post was a raw diamond under construction. Nothing was visible of what would come and thus, we are allowed to digitally show you around this historic building.
Discover modern and historic architecture combined in a unique building.

Our intent was to break the traditional notion of how labs would be in isolated closed rooms. Here, all rooms are interconnected with each other, both visually and spatially.
Around the lab rooms, there are focus and collaborative zones for the vly team.
We also planned a user journey for the visitors of the “Future Food Café”. Planning the circulation and zoning for different use cases and still have them connected as a whole was a major challenge. Along the walkway the visitors learn about the space, the science and the future of food, which they can get a taste of in the café.
Moreover, we designed an inviting community garden on the terrace, further adding to the intent of promoting plant based food.
The Future Food Café is planned to engage people to try new food-tech innovations and is planned to spark discussions. The open room layout with flexible furniture in the café and co-working space is meant for transformation according to need. The bar is a part of the tasting and testing hotspot.

Tasting & Sensing is at the core both the café as well as the food development happening in the vly labs. Every week, plenty of experienced food testes come in and try the latest developments and variants, before the come to the market.
We would have created a complete monochromatic space, where the products are the focus. Tasting, smelling and multi sensory interactions are made possible in this room.
